
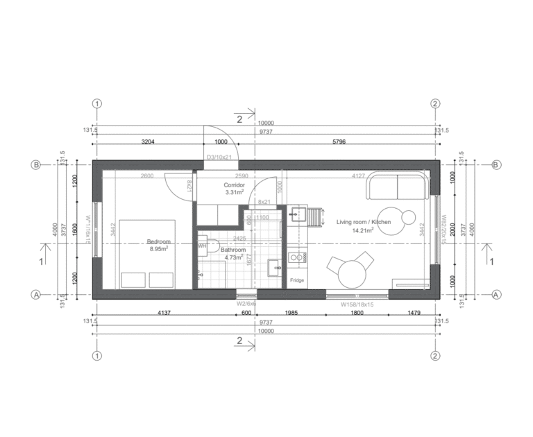
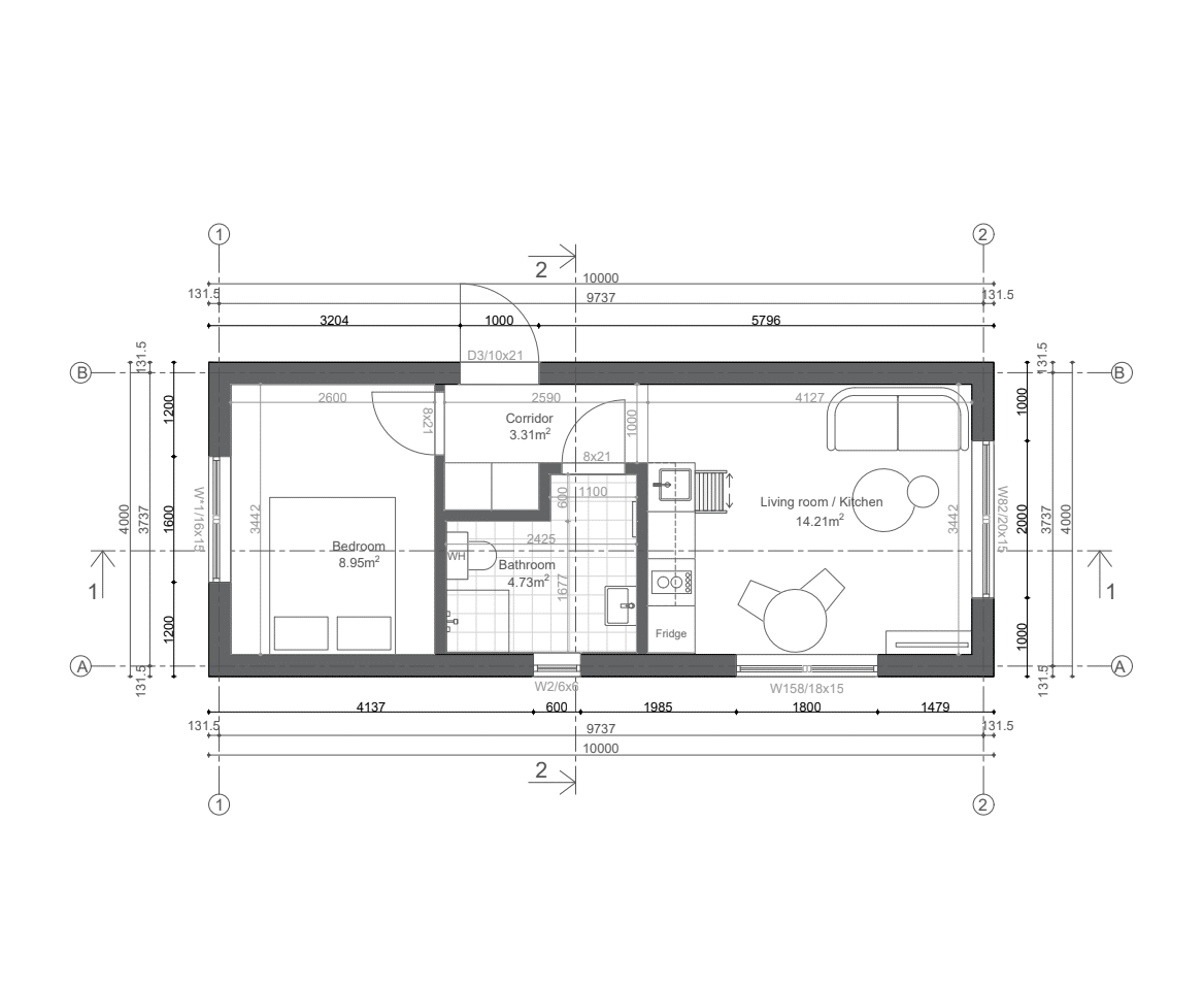
1 Bedroom Type A
Turnkey Price: €103,500
Area
40 m²
Bedrooms
1
Turnkey with Groundworks
€119,800
Exterior shell
€75,000
Description
Width: 4 m
Length: 10 m
Height: 4 m
Floor Plans
Documents
No documents available.
Technical Specifications
Ceiling
- Sheet metal roof (click roof)
- Support batten 25×100 mm
- Slatted frame 28x45mm (Air gap) cc 600
- Wind protection cloth
- Roof trusses 45x195mm cc400
- Mineral wool insulation 195 mm
- Diffusion barrier
- Nail lath 28×45 mm cc 400
- Interior panel 15 mm
Roof sizing/snow loads
The load-bearing parts of the houses are dimensioned for a snow zone of 2.5 kN/m2. Houses for snow zones 3–5.5 can be offered at an additional cost.
Exterior wall
- Standing panel 22 mm
- Nail lath 28×45 mm
- Ventilation batten 28×45 mm
- Wind protection cloth
- Wall studs 22×145 mm cc 600
- Mineral wool insulation 145 mm
- Board material depending on conditions
- Diffusion barrier (not wet rooms)
- Horizontal joists 45×45 mm cc 600
- Horizontal joists 45×45 mm cc 600
- Mineral wool insulation 45 mm
- Interior panel 15 mm
Floor joists
- Oak laminate flooring (other floors available as options)
- Tuplex underlay with diffusion barrier 3 mm
- Flooring chipboard / Flooring OSB 22 mm
- Floor joists 22×245 mm 600
- Mineral wool insulation 245 mm
- Cembrit board 4 mm
Floor joists wet room
- Oak laminate flooring (other floors available as options)
- Tuplex underlay with diffusion barrier 3 mm
- Flooring chipboard / Flooring OSB 22 mm
- Floor joists 22×245 mm 600
- Mineral wool insulation 245 mm
- Cembrit board 4 mm
- Floor joists wet room
- Tile gray 30×30 with gray joint
- Fixed
- Waterproofing
- Floating filler with reinforcing mesh
- Chipboard / OSB flooring 22 mm
- Floor joists 45×220 mm cc 300
- Mineral wool insulation 220 mm
- Cembrit board 4 mm
Interfloor (Loft)
- Oak laminate flooring (other floors available as options)
- Underlay 3 mm
- Flooring chipboard 22 mm
- Floor joists 45×95 mm cc 300
- Ceiling 15 mm
Inner wall
- Interior panel 15 mm
- Joists 45×145 mm
- Insulation 145 mm
- Interior panel 15 mm
Inner wall wet room
- Interior panel 15 mm
- Frame 45×95 mm cc 450
- Mineral wool insulation 95 mm
- Kortling for attachment 45 mm
- Waterproofing
- Fixed
- Tile white glossy 25×40 with light gray grout
Installation & Assembly
Exterior painting
All houses come pre-painted with a water-resistant white acrylic paint. Exterior panels are primed once and overpainted twice. Optional color code is available in both acrylic paint and sludge/linseed oil-based paint.
Windows and doors
According to floor plan. PVC 3-glazed windows in white with UV-1. Models with larger panoramic windows include tempered insulating glass. Ventilation mode and inward-opening doors are included as standard unless otherwise stated on the facade drawings. Wooden or aluminum windows are available to choose from. When choosing a floor plan with a sauna, wooden windows are included in the space. Safco white quality exterior door with Assa Abloy door lock is included as standard.
Plate
Eaves sheet, window trim, top sheet in white, anthracite and black are included. Alternative colours are available as options.
Drainage
Gutters and downpipes made of sheet metal in white, anthracite or black are included. Alternative colours are available as options. Leaf strainers and connections to drainage pipes can be provided at an additional cost.
Heating
Electric radiators are included as standard according to the drawing. Air heat pump or exhaust air heat pump with water-based underfloor heating are available as options.
Ventilation
Mechanical exhaust ventilation (Pax fan) with fresh air valves. When choosing an exhaust air heat pump, the pump handles the exhaust air in the house.–
Bathroom
Grey tiled floor 20x20mm with dark grey grout & white tiles 25x40mm on walls with light grey grout. Floor standing toilet from Gustavsberg. Wash basin mixer and shower mixer with hand shower and suspension from Grohe. Porcelain washbasin & electric towel rail. Preparation for installation wiring for washing machine and dryer not included. Waterproofing is installed according to Kiilto’s installation instructions and meets industry regulations for wet rooms. Floor drain from Purus.
Kitchen
Site-built and pre-assembled kitchen specially adapted for each house model. Laminated kitchen doors in white. Stainless steel straight kitchen handles. Laminate worktop and splashback. Stainless steel sink with mixer. Appliances not included. Several different options are available as options.
Stairs/loft ladder
All houses and floor plans are unique. Our two-story/loft models always include a white painted staircase or loft ladder. You can choose between different designs for an additional fee. Ask your salesperson which stairs work for your particular model.
Moldings
Transitions between ceiling, wall and floor as well as at the joints of modules have moldings.
Electricity
All electrical installations in the houses are consistently of the Schneider brand. LED spotlights with switches are included in all our models according to the drawing. Sockets and switch buttons are mounted in all spaces. The electrical center for the house in the form of a circuit breaker cabinet with a ground fault circuit interrupter. Media center for telephone, TV and data is available as an option. (Collection point for incoming communication cables included)
Water
Uponor or Tece water pipe system. Hot and cold water distribution through distributor cabinet. 80 L water heater with built-in cabinet. All pipework is hidden in the construction.
Sauna
When purchasing a model with a sauna, aspen/spruce panels on the ceiling and walls are included, two levels of aspen sauna benches, 30×30 gray tiles on the floor, a sauna heater with on and off function on the heater, lighting behind the backrest and a fresh air valve adapted for saunas.
Have Queries? Message Us.
Need Something Specific?
Submit the form with all your requirements and we will be quick to respond.
